1100 sft, office space for rent at Segun bagicha, Dhaka -1000

28/A, Segun bagicha, Dhaka 1000

Property ID 257
Property Category Commercial
Property Type Office
Price 90000.00 BDT
Property Size 1100
Area Segun Bagicha, Dhaka
Address 28/A, Segun bagicha, Dhaka 1000
Total Bathrooms 2
Generator No
Lift
Rooftop Garden
Swimming Pool
GYM
Fire Exit
Present Status Vacant
Posted On Sun, Apr 4, 2021 7:55 PM

Details

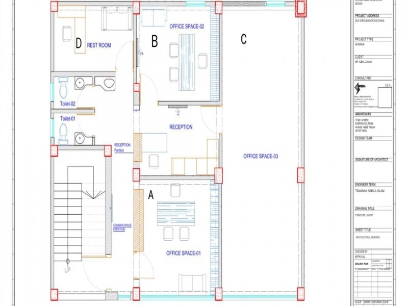
Ground Floor Total space 1100 sft with 2 bathroom = 21 sft It can be rent out as a whole or it can rented out according to the room space. If full floor space is taken the the rent will be 90,000. Service charge will be included with the rent. Advance 17,00,000 Specifications are given bellow if anyone is interested to take only single room 4 room space: Room No. A = 183 sft Rent : 22,000 Advance: 5,00,000 Service Charge: 3,500 Room No. B = 150 sft Rent : 18,000 Advance: 4,00,000 Service Charge: 3,000 Room No. C = 428 sft Rent : 40,000 Advance: 8,00,000 Service Charge: 5,000 Room No. D = 102 sft Rent : 15,000 Advance: 2,00,000 Service Charge: 2,000 Common Space : 219 sft Everyone will be able enjoy the common space of 219 sft which will be added proportionately among the tenant.
WhatsApp Chat